性欧美巨大乳boob,丰满肥臀大屁股熟妇激情,婷婷开心激情综合五月天,男女高潮激烈无遮挡免费观软件 ,男女啪啪真实无遮挡免费

歡迎光臨軒鼎建房網! 國內優(yōu)秀的建筑設計公司,為你提供詳細的別墅圖紙大全,鄉(xiāng)村建房必看!
電話

咨詢熱線:

400-079-65790536-3385581

當前位置:首頁 > 別墅圖紙中心 > 二層房屋圖紙 >

二層農村自建房屋設計圖,經典小戶型自建別墅

圖紙編號:D177    圖紙價格:268    主體造價:16-20萬

瀏覽量:

圖紙為A3施工激光藍圖+ A4高清效果圖照片,不提供電子版本套成品模板圖紙已經完善,不做任何修改,如需定制修改設計請點擊定制設計。

圖紙介紹:
二層自建房屋設計圖,農村自建別墅設計圖,經濟實用,內部布局完善合理,外觀小巧溫馨,造價合理,是現代農村自建房不錯的選擇。

設計功能:

? 占地尺寸:11.00m*10.28m

? 占地面積:103.52㎡

? 建筑面積:185.3㎡

? 建筑結構:磚混結構

? 造價估算:16-20萬

施工參數:
建筑層數:地上2層,建筑總高度(到屋脊高度):9.100米,建筑面積:185.3平方米。
結構體系:磚混結構,抗震設防烈度七度,屋面為現澆混凝土屋面。
樓層層高:一層層高3.6米,二層層高3.3米。

一層平面圖:

二層平面圖:

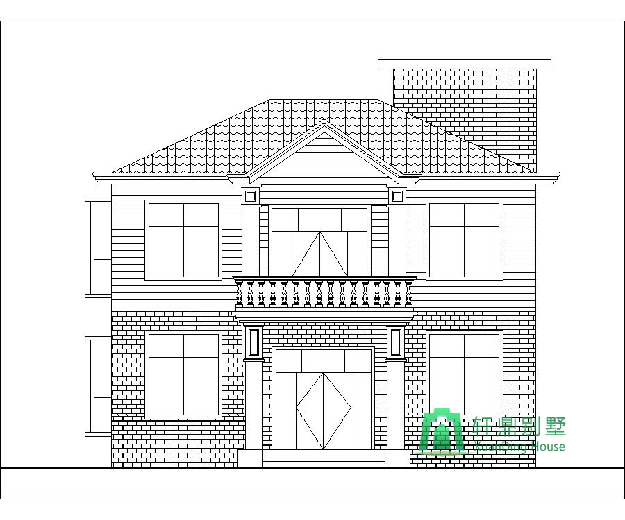
正立面圖:

背立面圖:

左立面圖:

右立面圖:

 

更多圖紙

×
購買本圖紙
  • 圖紙編號:*
  • 所在省市:*
  • 詳細地址:*
  • 您的姓名:*
  • 手機號碼:*