性欧美巨大乳boob,丰满肥臀大屁股熟妇激情,婷婷开心激情综合五月天,男女高潮激烈无遮挡免费观软件 ,男女啪啪真实无遮挡免费

歡迎光臨軒鼎建房網! 國內優(yōu)秀的建筑設計公司,為你提供詳細的別墅圖紙大全,鄉(xiāng)村建房必看!
電話

咨詢熱線:

400-079-65790536-3385581

當前位置:首頁 > 別墅圖紙中心 > 二層房屋圖紙 >

新中式二層復式別墅設計圖,含全套完善施工圖紙,中高端自建房屋

圖紙編號:Z442    圖紙價格:998    主體造價:47-53萬

瀏覽量:

  圖紙為A3施工激光藍圖+ A4高清效果圖照片,不提供電子版,本套成品模板圖紙已經完善,不做任何修改,如需定制修改設計請點擊定制設計

圖紙介紹:

高端二層新中式復式別墅設計圖,端莊大氣,占地面積246平方米,棱角分明,非常適合中年人居住,中式風格一般都是70 80年代人的最愛,如果經濟條件允許,給父母建一套這樣的房子,真的是再好不過!

設計功能:

? 占地尺寸:20.24m*13.25m

? 占地面積:246.33㎡

? 建筑面積:421.40㎡

? 建筑結構:框架結構

? 造價估算:47-53萬

施工參數:
建筑層數:地上2層,建筑總高度(到屋脊高度):9.794米,建筑面積:421.40平方米。
結構體系:磚混結構,抗震設防烈度七度,屋面為現澆混凝土屋面。
樓層層高:一層層高3.6米,二層層高3.3米。

側面效果圖:

俯視效果圖:

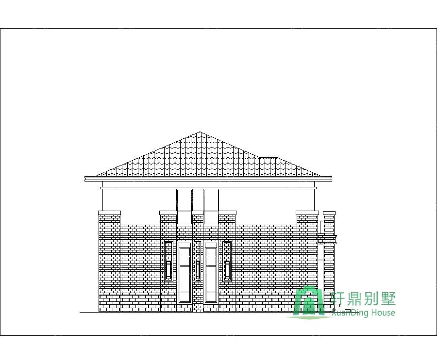
背面效果圖:

一層平面圖:

二層平面圖:

正立面圖:

背立面圖:

左立面圖:

右立面圖:

 

更多圖紙

×
購買本圖紙
  • 圖紙編號:*
  • 所在省市:*
  • 詳細地址:*
  • 您的姓名:*
  • 手機號碼:*